


APARTAMENT 2 CAMERE 59 MP - AVIATIEI
Bucuresti, Aviatiei
210.000€
Camere
2
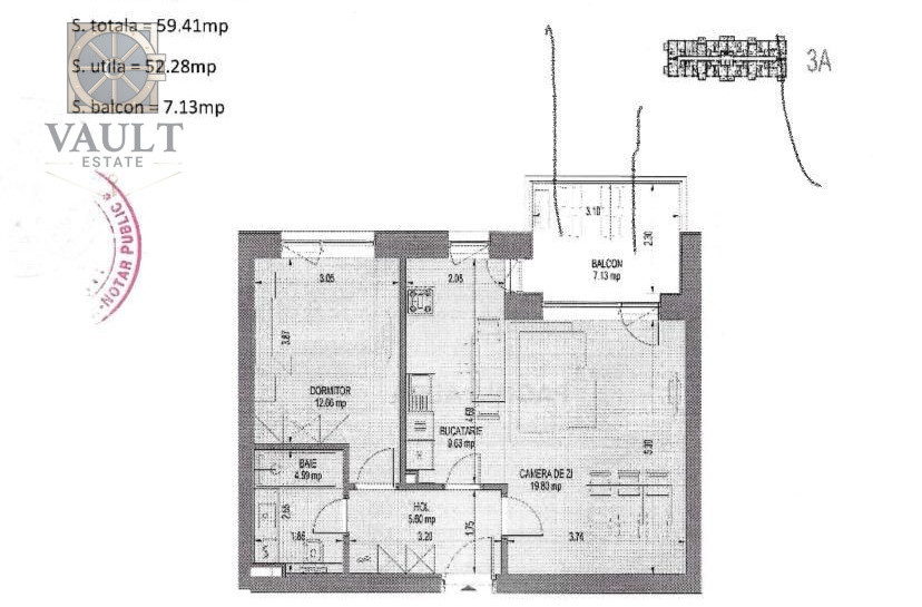
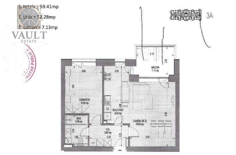
Suprafata utila
52.28 mp
Suprafata construita
59.41 mp
Etaj
Etaj 7
Bai
1
An constructie
2025
- ID:P36954
- Nr. camere:2
- Nr. dormitoare:1
- S. utila:52.28 mp
- S. balcoane:7.13 mp
- S. construita:59.41 mp
- Comp.:Decomandat
- Confort:1
- Etaj:Etaj 7
- Nr. bucatarii:1
- Nr. bai:1
- Nr. balcoane:1
- An constructie:2025
- Structura:Beton
- Tip imobil:Bloc
- Regim inaltime:P+10
Descriere
COD PROPRIETATE: P34180
Agentia VAULT ESTATE vă prezintă un apartament cu 2 camere, de vanzare, tip compartimentare decomandat, situat în zona Aviatiei din Bucuresti. Proprietatea este amplasată într-un bloc din Ansamblul Rezidential Nusco City, construit în anul 2025, la etajul 7/10. Dispune de o suprafata totala de 59 mp.
Utilitati generale:
Sistem de incalzire: centrala imobil, incalzire pardoseala
Dacă zona și caracteristicile acestui apartament se aliniază nevoilor dumneavoastră, vă invităm să ne contactați pentru mai multe detalii și pentru a programa o vizionare.
Beneficiile colaborării cu Vault Estate:
• Succesul începe cu alegerile inteligente. Doar pentru că ne-ați contactat, aveți acces GRATUIT la sprijinul unui expert financiar, indiferent dacă achiziționați prin noi, prin altă agenție sau pe cont propriu.
• Vă oferim acces la cele mai bune soluții de credite ipotecare și credite de nevoi personale, pentru ca timpul, banii și liniștea dumneavoastră să fie protejate.
• Suntem alături de dumneavoastră la fiecare pas, pentru ca visele să devină realitate.
Clarificări adiționale:
• Informatiile tehnice au caracter orientativ, ele fiind preluate de la proprietari.
• Se percepe comision.
Citeste mai mult
Agentia VAULT ESTATE vă prezintă un apartament cu 2 camere, de vanzare, tip compartimentare decomandat, situat în zona Aviatiei din Bucuresti. Proprietatea este amplasată într-un bloc din Ansamblul Rezidential Nusco City, construit în anul 2025, la etajul 7/10. Dispune de o suprafata totala de 59 mp.
Utilitati generale:
Sistem de incalzire: centrala imobil, incalzire pardoseala
Dacă zona și caracteristicile acestui apartament se aliniază nevoilor dumneavoastră, vă invităm să ne contactați pentru mai multe detalii și pentru a programa o vizionare.
Beneficiile colaborării cu Vault Estate:
• Succesul începe cu alegerile inteligente. Doar pentru că ne-ați contactat, aveți acces GRATUIT la sprijinul unui expert financiar, indiferent dacă achiziționați prin noi, prin altă agenție sau pe cont propriu.
• Vă oferim acces la cele mai bune soluții de credite ipotecare și credite de nevoi personale, pentru ca timpul, banii și liniștea dumneavoastră să fie protejate.
• Suntem alături de dumneavoastră la fiecare pas, pentru ca visele să devină realitate.
Clarificări adiționale:
• Informatiile tehnice au caracter orientativ, ele fiind preluate de la proprietari.
• Se percepe comision.
Specificatii
Centrala imobil
Incalzire pardoseala
Bloc izolat termic
Bucatarie Nemobilata
Bucatarie Neutilata
Nemobilat
Interfon
Lift
Cosmin Musat
0725 969 969
Esti interesat de aceasta proprietate ?