



APARTAMENT 3 CAMERE - PARCUL IOR - BABA NOVAC
Bucuresti, Baba Novac
125.000€
Camere
3
Suprafata utila
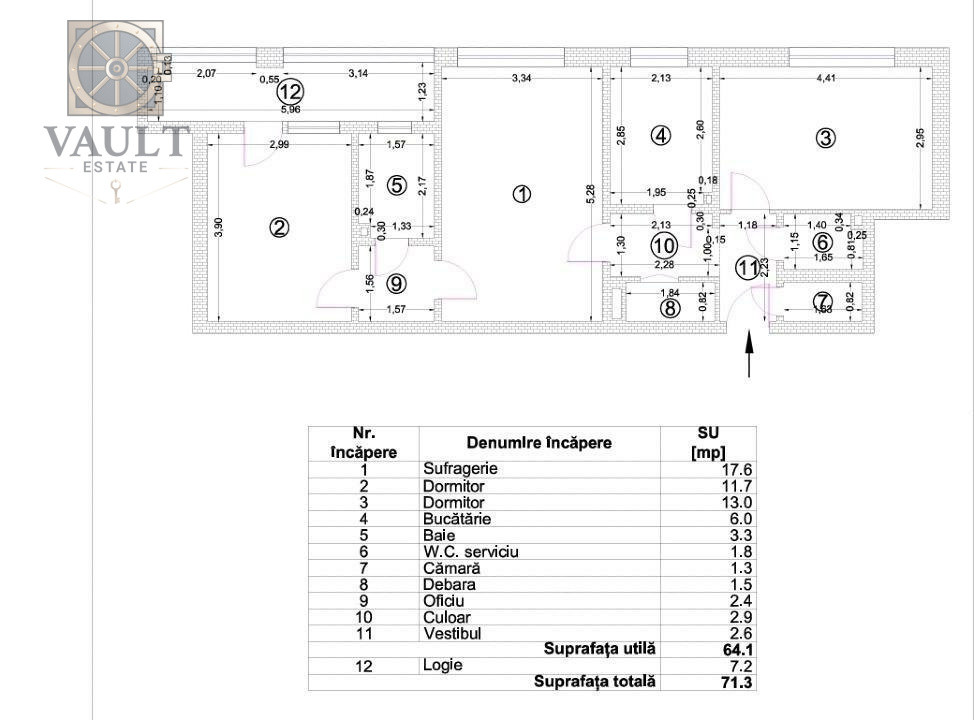
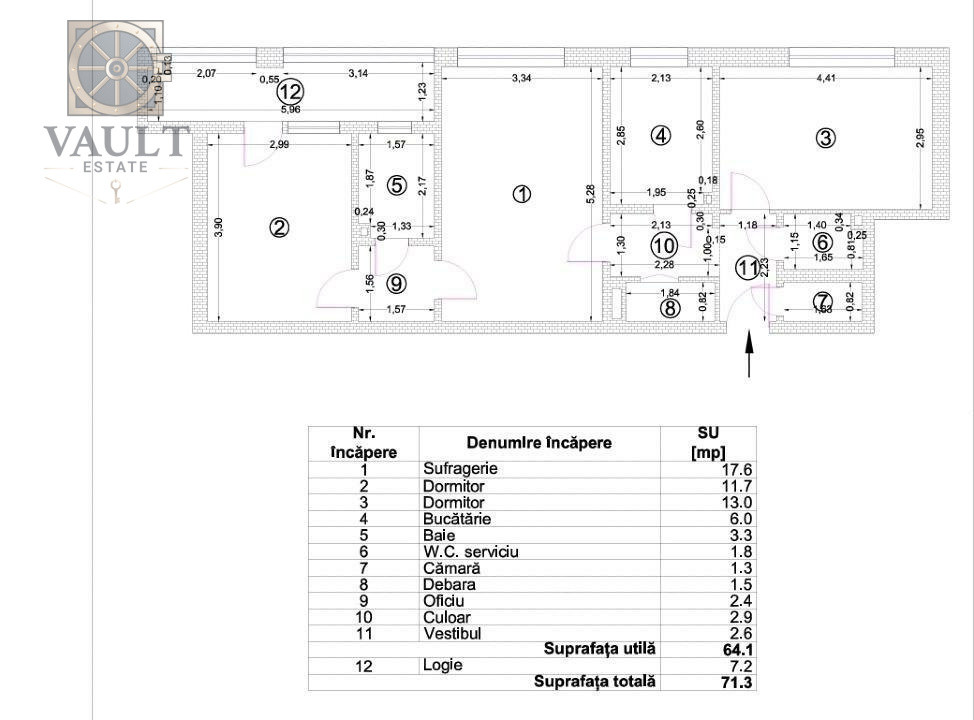
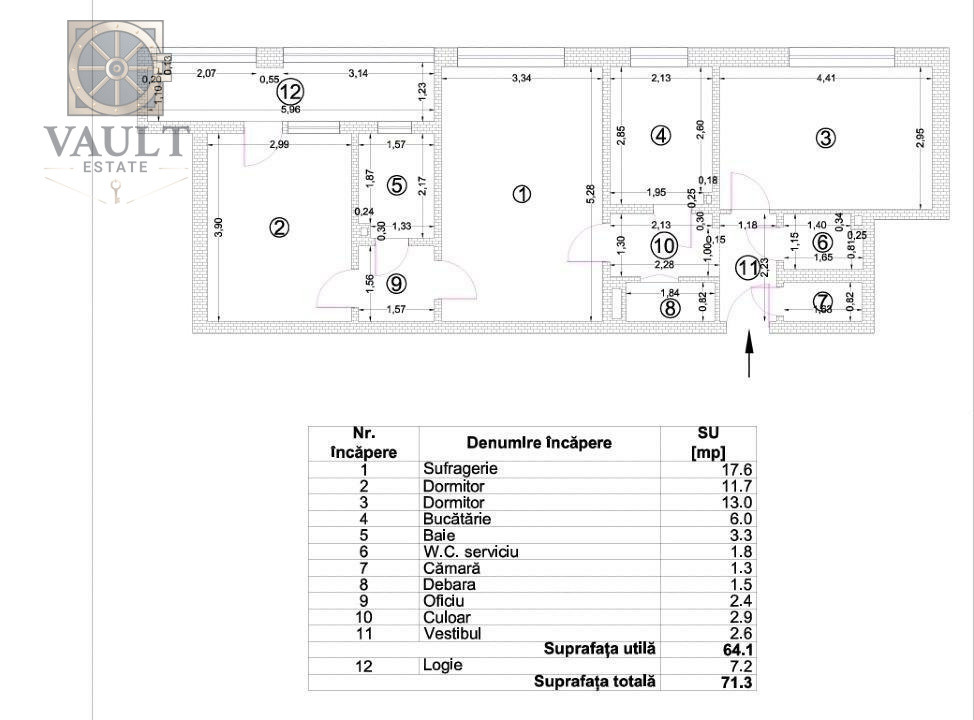
71.30 mp
Suprafata construita
71.30 mp
Etaj
Etaj 7
Bai
2
An constructie
1966
- ID:P38088
- Nr. camere:3
- Nr. dormitoare:2
- S. utila:71.30 mp
- S. balcoane:7.20 mp
- S. construita:71.30 mp
- Comp.:Semidecomandat
- Confort:1
- Etaj:Etaj 7
- Nr. bucatarii:1
- Nr. bai:2
- Nr. balcoane:1
- An constructie:1966
- An renovare:2015
- Structura:Beton
- Tip imobil:Bloc
- Regim inaltime:P+10
Descriere
COD PROPRIETATE: P36593
Agentia VAULT ESTATE vă prezintă un apartament cu 3 camere, de vanzare, tip compartimentare semidecomandat, situat în zona Baba Novac din Bucuresti. Proprietatea este amplasată într-un imobil de tip bloc, construit în anul 1966, anvelopat in anul 2015, la etajul 7/10. Dispune de o suprafata totala de 71 mp.
Apartamentul necesita renovare.
Imobilul dispune de o pozitie excelenta cu acces facil catre mijloace de transport si catre multe puncte de interes, acesta fiind situat chiar la intrarea in PARCUL IOR si avand ca alte vecinatati precum PARK LAKE MALL, STADIONUL SI PARCUL NATIONAL, plus multe spatii comerciale si scoli, gradinite precum SCOALA GIMNAZIALA DE ARTENR.5 sau FACULTATEA DE MEDICINA TITU MAIORESCU.
Utilitati generale: curent electric, apa, canalizare
Sistem de incalzire: termoficare, calorifere
Dacă zona și caracteristicile acestui apartament se aliniază nevoilor dumneavoastră, vă invităm să ne contactați pentru mai multe detalii și pentru a programa o vizionare.
Beneficiile colaborării cu Vault Estate:
• Succesul începe cu alegerile inteligente. Doar pentru că ne-ați contactat, aveți acces GRATUIT la sprijinul unui expert financiar, indiferent dacă achiziționați prin noi, prin altă agenție sau pe cont propriu.
• Vă oferim acces la cele mai bune soluții de credite ipotecare și credite de nevoi personale, pentru ca timpul, banii și liniștea dumneavoastră să fie protejate.
• Suntem alături de dumneavoastră la fiecare pas, pentru ca visele să devină realitate.
Clarificări adiționale:
• Informatiile tehnice au caracter orientativ, ele fiind preluate de la proprietari.
• Se percepe comision.
Citeste mai mult
Agentia VAULT ESTATE vă prezintă un apartament cu 3 camere, de vanzare, tip compartimentare semidecomandat, situat în zona Baba Novac din Bucuresti. Proprietatea este amplasată într-un imobil de tip bloc, construit în anul 1966, anvelopat in anul 2015, la etajul 7/10. Dispune de o suprafata totala de 71 mp.
Apartamentul necesita renovare.
Imobilul dispune de o pozitie excelenta cu acces facil catre mijloace de transport si catre multe puncte de interes, acesta fiind situat chiar la intrarea in PARCUL IOR si avand ca alte vecinatati precum PARK LAKE MALL, STADIONUL SI PARCUL NATIONAL, plus multe spatii comerciale si scoli, gradinite precum SCOALA GIMNAZIALA DE ARTENR.5 sau FACULTATEA DE MEDICINA TITU MAIORESCU.
Utilitati generale: curent electric, apa, canalizare
Sistem de incalzire: termoficare, calorifere
Dacă zona și caracteristicile acestui apartament se aliniază nevoilor dumneavoastră, vă invităm să ne contactați pentru mai multe detalii și pentru a programa o vizionare.
Beneficiile colaborării cu Vault Estate:
• Succesul începe cu alegerile inteligente. Doar pentru că ne-ați contactat, aveți acces GRATUIT la sprijinul unui expert financiar, indiferent dacă achiziționați prin noi, prin altă agenție sau pe cont propriu.
• Vă oferim acces la cele mai bune soluții de credite ipotecare și credite de nevoi personale, pentru ca timpul, banii și liniștea dumneavoastră să fie protejate.
• Suntem alături de dumneavoastră la fiecare pas, pentru ca visele să devină realitate.
Clarificări adiționale:
• Informatiile tehnice au caracter orientativ, ele fiind preluate de la proprietari.
• Se percepe comision.
Specificatii
Curent
Apa
Canalizare
Termoficare
Calorifere
Bloc izolat termic
Ferestre Termopan
Usa intrare Metal
Usa interior Lemn
Interfon
Lift
Sorin Dumitru
0725 969 969
Esti interesat de aceasta proprietate ?