









Apartament 4 camere - Piata Victoriei-Titulescu
Bucuresti, Titulescu
253.000€
Camere
4
Suprafata utila
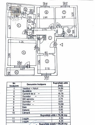
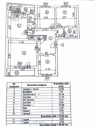
79.36 mp
Suprafata construita
88.26 mp
Etaj
Etaj 4
Bai
2
An constructie
1979
- ID:P37049
- Nr. camere:4
- Nr. dormitoare:3
- S. utila:79.36 mp
- S. construita:88.26 mp
- Comp.:Decomandat
- Confort:1
- Etaj:Etaj 4
- Nr. bucatarii:1
- Nr. bai:2
- Nr. balcoane:2
- An constructie:1979
- Structura:Beton
- Tip imobil:Bloc
- Regim inaltime:P+10
- Orientare:Nord-Sud
Descriere
COD PROPRIETATE: P34246
Agentia VAULT ESTATE vă prezintă un apartament cu 4 camere, de vanzare, tip compartimentare decomandat, situat în zona Titulescu din Bucuresti. Proprietatea este amplasată într-un imobil de tip bloc, construit în anul 1979, la etajul 4/10. Dispune de o suprafata totala de 88 mp.
Utilitati generale: curent electric, apa, canalizare, gaz
Sistem de incalzire: termoficare, calorifere
Dacă zona și caracteristicile acestui apartament se aliniază nevoilor dumneavoastră, vă invităm să ne contactați pentru mai multe detalii și pentru a programa o vizionare.
Beneficiile colaborării cu Vault Estate:
• Succesul începe cu alegerile inteligente. Doar pentru că ne-ați contactat, aveți acces GRATUIT la sprijinul unui expert financiar, indiferent dacă achiziționați prin noi, prin altă agenție sau pe cont propriu.
• Vă oferim acces la cele mai bune soluții de credite ipotecare și credite de nevoi personale, pentru ca timpul, banii și liniștea dumneavoastră să fie protejate.
• Suntem alături de dumneavoastră la fiecare pas, pentru ca visele să devină realitate.
Clarificări adiționale:
• Informatiile tehnice au caracter orientativ, ele fiind preluate de la proprietari.
• Se percepe comision.
Citeste mai mult
Agentia VAULT ESTATE vă prezintă un apartament cu 4 camere, de vanzare, tip compartimentare decomandat, situat în zona Titulescu din Bucuresti. Proprietatea este amplasată într-un imobil de tip bloc, construit în anul 1979, la etajul 4/10. Dispune de o suprafata totala de 88 mp.
Utilitati generale: curent electric, apa, canalizare, gaz
Sistem de incalzire: termoficare, calorifere
Dacă zona și caracteristicile acestui apartament se aliniază nevoilor dumneavoastră, vă invităm să ne contactați pentru mai multe detalii și pentru a programa o vizionare.
Beneficiile colaborării cu Vault Estate:
• Succesul începe cu alegerile inteligente. Doar pentru că ne-ați contactat, aveți acces GRATUIT la sprijinul unui expert financiar, indiferent dacă achiziționați prin noi, prin altă agenție sau pe cont propriu.
• Vă oferim acces la cele mai bune soluții de credite ipotecare și credite de nevoi personale, pentru ca timpul, banii și liniștea dumneavoastră să fie protejate.
• Suntem alături de dumneavoastră la fiecare pas, pentru ca visele să devină realitate.
Clarificări adiționale:
• Informatiile tehnice au caracter orientativ, ele fiind preluate de la proprietari.
• Se percepe comision.
Specificatii
Curent
Apa
Canalizare
Gaz
Termoficare
Calorifere
Aer conditionat
Bloc izolat termic
Vopsea lavabila
Faianta
Parchet
Gresie
Ferestre Termopan
Usa intrare Metal
Usa interior Lemn
Bucatarie Mobilata
Bucatarie Utilata
Apometre
Contor caldura
Contor gaz
Interfon
Lift
Alexandru Dragoi
0725 969 969
Esti interesat de aceasta proprietate ?