

































Penthouse 5 camere - Bloc Nou - Theodor Pallady
Bucuresti, Theodor Pallady
279.000€ + TVA
Camere
5
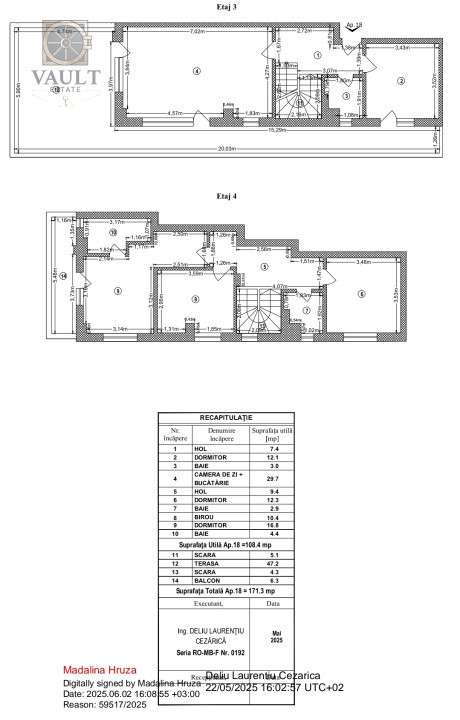
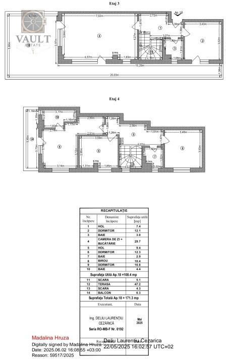
Suprafata utila
108.40 mp
Suprafata construita
171.30 mp
Etaj
Etaj 3
Bai
3
Parcari
1
- ID:P37755
- Nr. camere:5
- Nr. dormitoare:3
- S. utila:108.40 mp
- S. balcoane:6.30 mp
- S. terase:47.30 mp
- S. construita:171.30 mp
- Confort:Lux
- Etaj:Etaj 3
- Nr. bucatarii:1
- Nr. bai:3
- Nr. balcoane:1
- Nr. parcari:1
- An constructie:2025
- Structura:Beton
- Regim inaltime:P+4
- Orientare:Sud-Vest
- Clasa energetica:A
Descriere
COD PROPRIETATE: P37266
Agentia VAULT ESTATE vă prezintă un apartament cu 5 camere, de vanzare, tip compartimentare duplex, situat în zona Theodor Pallady din Bucuresti. Proprietatea este amplasată într-un imobil de tip bloc mixt, construit în anul 2025, la etajul 3/4. Dispune de o suprafata totala de 171 mp.
Utilitati generale: curent electric, apa, canalizare, gaz, catv, telefon, acces internet, fibra optica
Sistem de incalzire: centrala proprie, incalzire pardoseala
Dacă zona și caracteristicile acestui apartament se aliniază nevoilor dumneavoastră, vă invităm să ne contactați pentru mai multe detalii și pentru a programa o vizionare.
Beneficiile colaborării cu Vault Estate:
• Succesul începe cu alegerile inteligente. Doar pentru că ne-ați contactat, aveți acces GRATUIT la sprijinul unui expert financiar, indiferent dacă achiziționați prin noi, prin altă agenție sau pe cont propriu.
• Vă oferim acces la cele mai bune soluții de credite ipotecare și credite de nevoi personale, pentru ca timpul, banii și liniștea dumneavoastră să fie protejate.
• Suntem alături de dumneavoastră la fiecare pas, pentru ca visele să devină realitate.
Clarificări adiționale:
• Informatiile tehnice au caracter orientativ, ele fiind preluate de la proprietari.
• Se percepe comision.
Citeste mai mult
Agentia VAULT ESTATE vă prezintă un apartament cu 5 camere, de vanzare, tip compartimentare duplex, situat în zona Theodor Pallady din Bucuresti. Proprietatea este amplasată într-un imobil de tip bloc mixt, construit în anul 2025, la etajul 3/4. Dispune de o suprafata totala de 171 mp.
Utilitati generale: curent electric, apa, canalizare, gaz, catv, telefon, acces internet, fibra optica
Sistem de incalzire: centrala proprie, incalzire pardoseala
Dacă zona și caracteristicile acestui apartament se aliniază nevoilor dumneavoastră, vă invităm să ne contactați pentru mai multe detalii și pentru a programa o vizionare.
Beneficiile colaborării cu Vault Estate:
• Succesul începe cu alegerile inteligente. Doar pentru că ne-ați contactat, aveți acces GRATUIT la sprijinul unui expert financiar, indiferent dacă achiziționați prin noi, prin altă agenție sau pe cont propriu.
• Vă oferim acces la cele mai bune soluții de credite ipotecare și credite de nevoi personale, pentru ca timpul, banii și liniștea dumneavoastră să fie protejate.
• Suntem alături de dumneavoastră la fiecare pas, pentru ca visele să devină realitate.
Clarificări adiționale:
• Informatiile tehnice au caracter orientativ, ele fiind preluate de la proprietari.
• Se percepe comision.
Specificatii
Curent
Apa
Canalizare
Gaz
CATV
Telefon
Acces internet
Fibra optica
Centrala proprie
Incalzire pardoseala
Izolatie Exterior
Bloc izolat termic
Vopsea lavabila
Faianta
Parchet
Gresie
Ferestre Termopan
Usa intrare Metal
Usa interior Lemn
Terasa
Wc serviciu
Bucatarie Nemobilata
Bucatarie Neutilata
Apometre
Contor gaz
Nemobilat
Videointerfon
Lift
Florin Trutia
0725 969 969
Esti interesat de aceasta proprietate ?